工務店のブログやイベント情報が見られる「注文住宅ブログ市場」
明治ホームズのブログ
ブログ市場のトップに戻る
明治ホームズのブログ
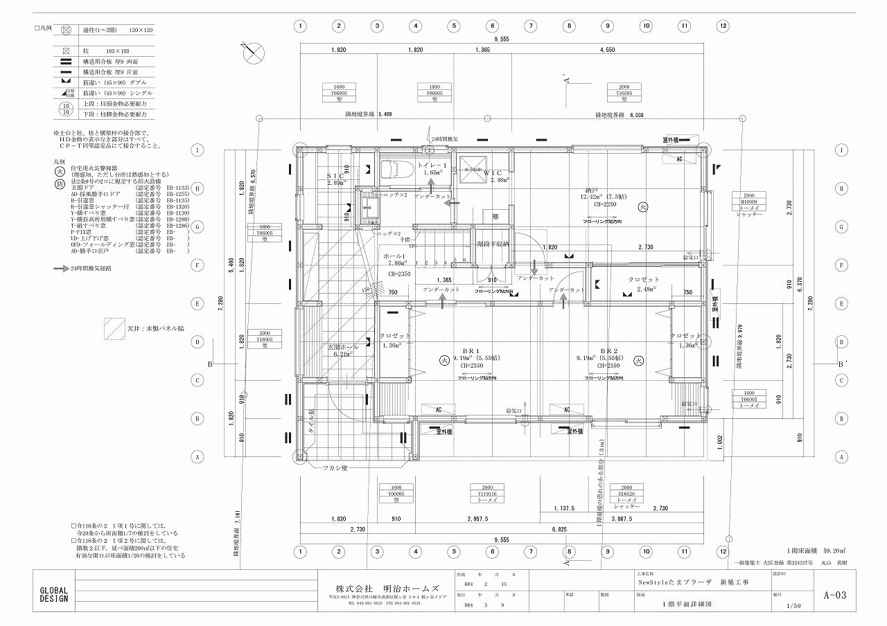
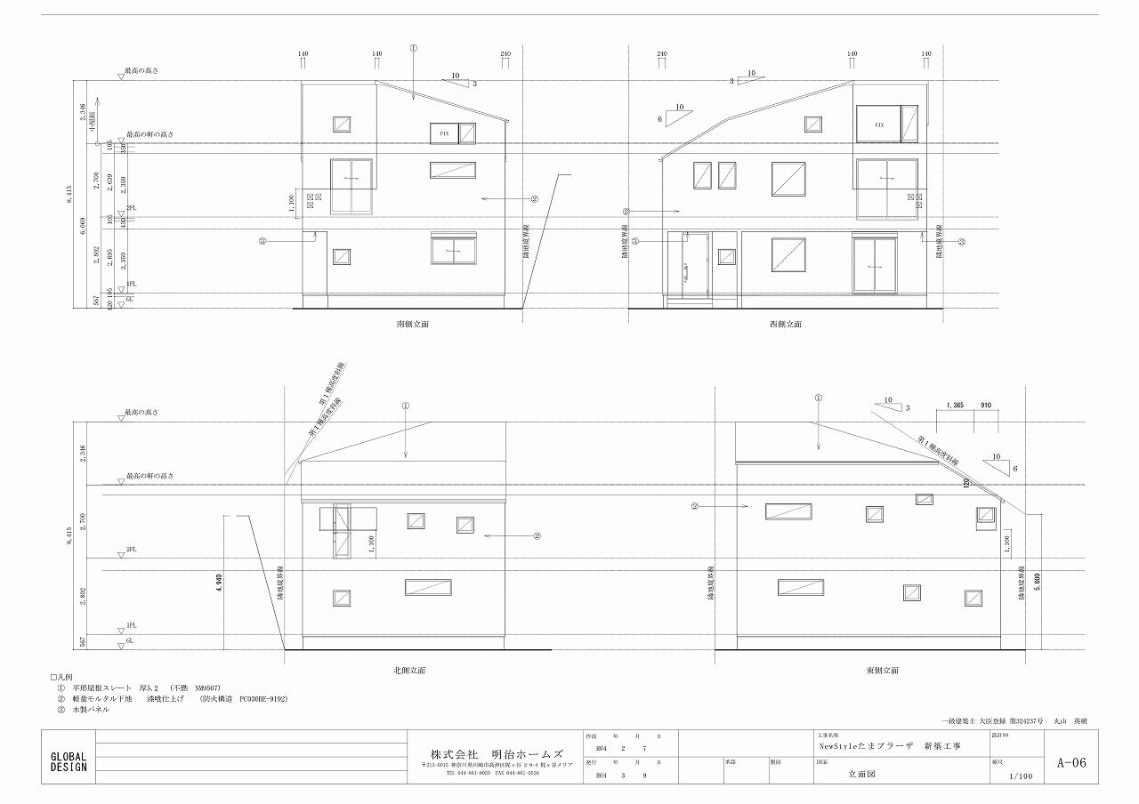
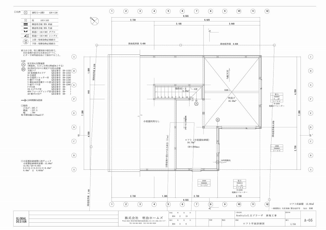
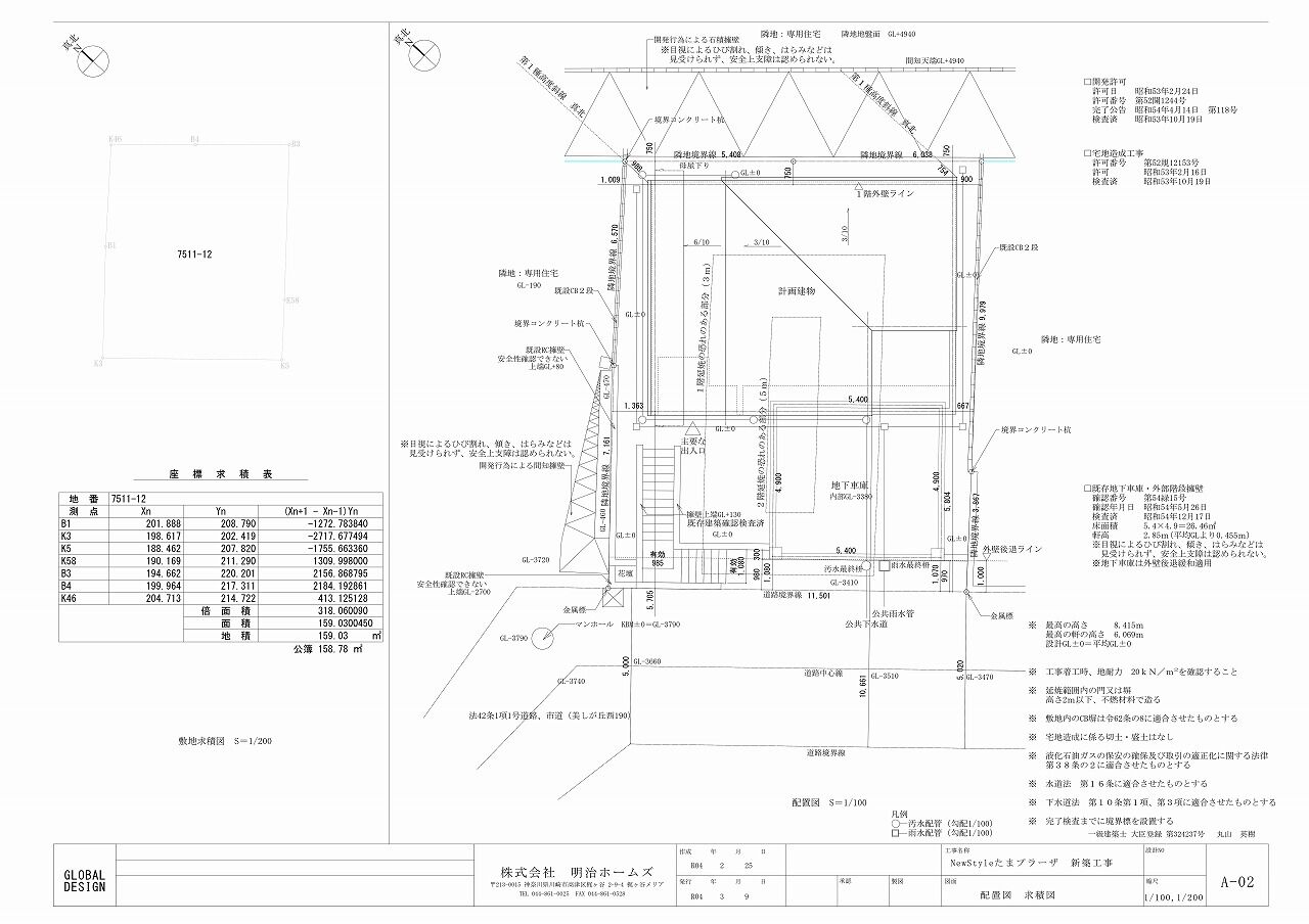
NewStyleたまプラーザ、基礎工事進行中!
投稿日:
2022-03-19 17:03:12
作成者:
明治ホームズ
(神奈川の工務店)
NewStyleたまプラーザ、基礎工事進行中です!
どんどんすすみますー!
お問い合わせはコチラまで
↓↓
enokiblog@gmail.com
明治ホームズ フェイスブック☆
明治ホームズ インスタ☆
明治ホームズ 横浜市 川崎市のデザイナーズ住宅 SE構法 木骨住宅工務店 注文住宅 榎ブログ とことん家造り 自然素材 無垢 漆喰 長期優良住宅 オール電化 太陽光発電
耐震構法SE構法とは
≪ 前の記事
次の記事 ≫
明治ホームズ の紹介
コストをおさえながら、お客様の希望やライフスタイルを積極的に取り入れたオリジナル建築をモットーに住まいづくりを行っています。 お客様に最大限満足していただくために、当社ではまずはじめに社内の建築家と綿密なコンサルティングを実施。各建築家が、お客様の要望を聞きながらさまざまな提案を行います!
TOPに戻る
© 2009 Housing Bazar All rights reserved.
家づくりのテーマから探してみる
建築予定の会社の情報を見てみる
注文住宅HOME
|
注文住宅ブログ市場
|
サイトマップ
|
お問い合わせ
|
会社概要
|
広告掲載・出展社募集
|
利用規約
|
プライバシーポリシー